Het gelijkvloers werd opgedeeld in twee delen. In het eerste deel, de voorplaats, werd door toevoeging van enkele wanden ruimte gemaakt voor een berging met oa fietsenstalling, een wasplaats en een apart toilet.
Achteraan de woning vinden we de zitplaats en een keuken met geïntegreerde eetplaats, badend in het licht met zicht op de charmante stadstuin. Het opvallende spits-hoekige raam is enerzijds een verwijzing naar het vroegere dak, anderzijds geeft het de woning een eigen karakter.
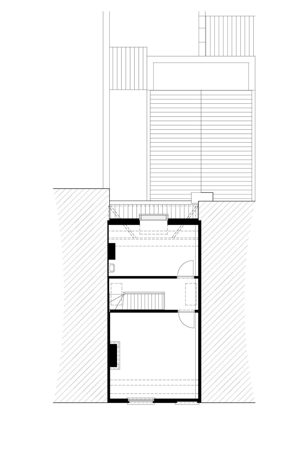
Op de verdieping vinden we de badkamer met apart toilet en masterbedroom. Onder het geïsoleerde dak bevindt zich een tweede slaapkamer met aparte bureauruimte en een handige mezzanine.

