Tandarts groepspraktijk met venster op het groen
Verbouwen van een woning met dokterskabinet tot woning met tandartsen-groepspraktijk in De Pinte
Bij dit project transformeerden we een bestaande dokterswoning tot een hedendaagse tandarts groepspraktijk met een ruim appartement op de verdieping.
Het bestaande pand had een degelijke basisstructuur en grote ruimtes, door een paar tredes, liggen de binnenruimtes wat hoger dan de omgeving.
Bij het ontwerp werd maximaal ingezet op het behoud van de bestaande structuur, met oog voor budget, functionaliteit én toekomstgerichtheid.
Door de praktijkruimte volledig op het gelijkvloers te voorzien, zorgen we voor een drempelloze toegankelijkheid voor patiënten. Een accentuitbouw met stalen portiekstructuur toont duidelijke de publieke functie in het straatbeeld. Deze omvat eveneens de helling om het niveauverschil met het maaiveld op een elegante manier te overbruggen. De wachtzaal is een beglaasd volume, waardoor de bezoekers in het groen kunnen plaatsnemen. Door de houten bekleding binnen-buiten te laten doorlopen wordt het parkgevoel in de wachtzaal extra versterkt.
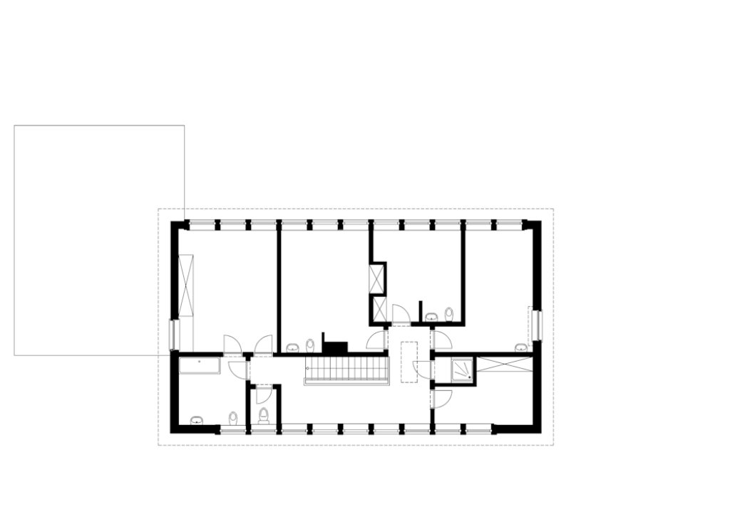
Het bestaande volume werd efficiënt herwerkt met minimale uitbreidingen aan de voor- en zijgevel. De voormalige garage werd geïntegreerd in de praktijk en ingericht met ondersteunende functies. De praktijk is flexibel opgevat: in een eerste fase kunnen drie kabinetten ingericht worden, met de mogelijkheid tot uitbreiding in een latere fase. Alle kabinetten hebben zicht naar de mooie parktuin. Het koude klinische wordt vermeden, door aangename ruimtes te creëren met zicht op het rustgevende groen.
Op de verdieping werd een lichtrijk appartement met twee slaapkamers voorzien, met een eigen toegang.
-
Categorie
Werk
-
Types
Verbouwing
-
Fases
Gerealiseerd
-
Bouwheer
B - V
-
Ontwerp
2018
-
Uitvoering
2019 - 2020
-
Locatie
De Pinte










