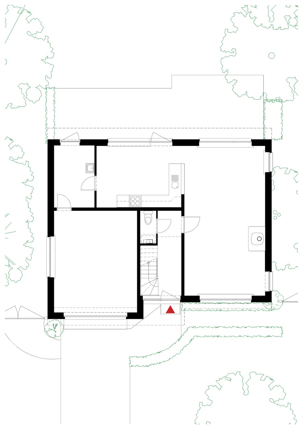
Het jonge gezin had nood aan extra ruimte zowel in de leefruimtes als in de slaapkamers. Ondanks de beperkte uitbreiding van slechts 1,3 m ter hoogte van de achtergevel met grote raampartijen zorgt dit toch voor de extra ruimte, maximale lichtinval en een beter contact met de tuin.
Eveneens werden de gedateerde houten planchetten in de inkomzone verwijderd en vervangen door een lichtrijke witte afwerking waardoor inkom met de trap naar de verdieping meer licht ontvangt.
Op de verdieping werd de uitbreiding doorgetrokken zodat een extra kamer en grotere badkamer gerealiseerd kon worden. Een doordachte raamopening in deze master bedroom geeft een gekaderd zicht naar het omliggende groen, een raam dat langs de buitenzijde geaccentueerd wordt met rondom rond aluminium gevelkader.













