Connectie met de stad en de tuin
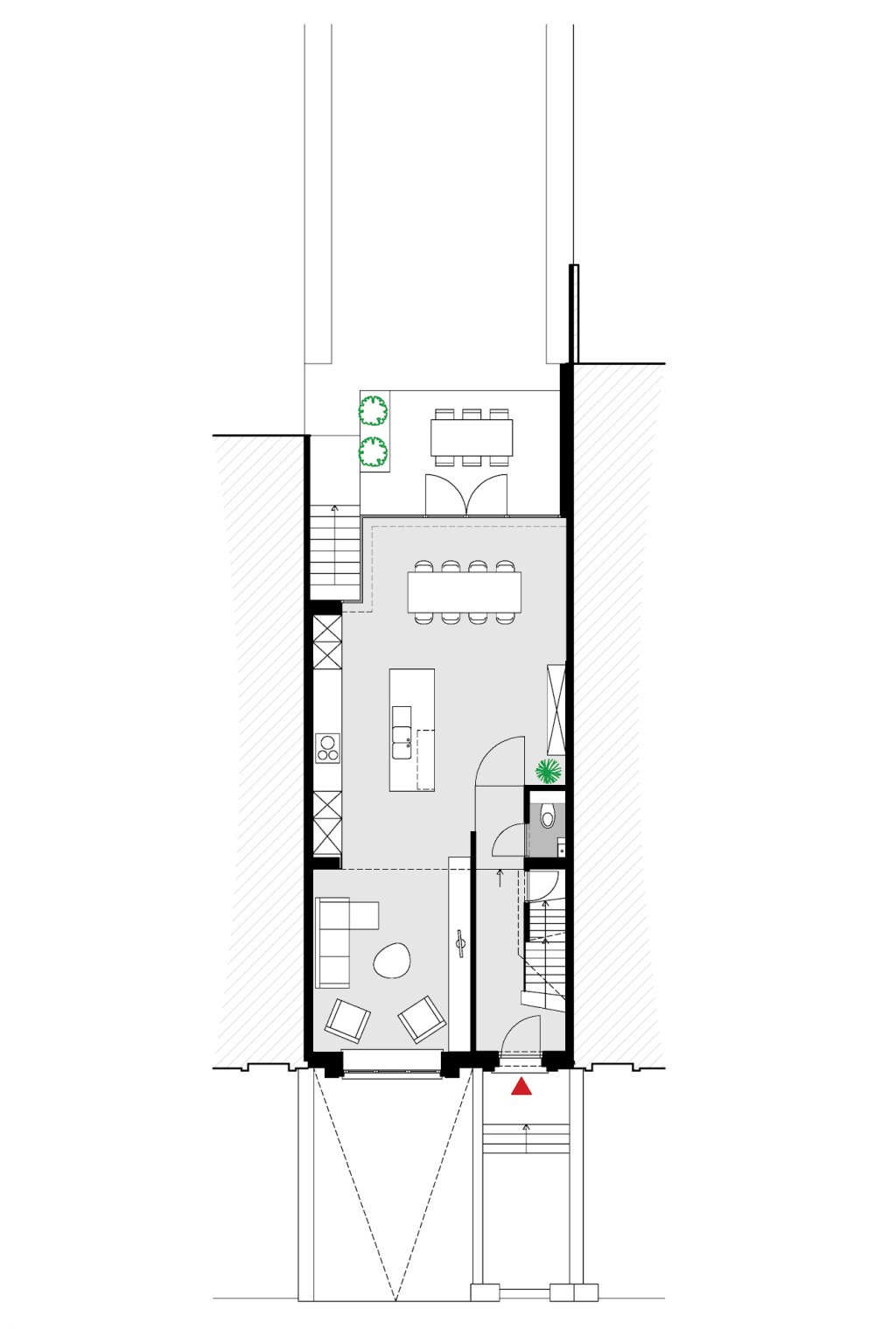
Deze rijwoning aan de rand van het centrum van Kortrijk in een straat dat gekenmerkt wordt door statige bel-etagewoningen, had koterijen tot diep in de tuin. De woning had wel een connectie met de stad, maar miste de connectie met de groene oase van de stadstuin waar men zich even kan terugtrekken om tot rust te komen. Door het slopen van de bestaande achterbouw en het integreren van een uitbouw in glas werd een lichtrijke leefruimte gecreëerd waarbij het terras en de tuin betrokken worden bij de leefruimtes.









