Van F naar A: energetische renovatie van een halfopen bebouwing
Verbouwing van een woning te Kortrijk
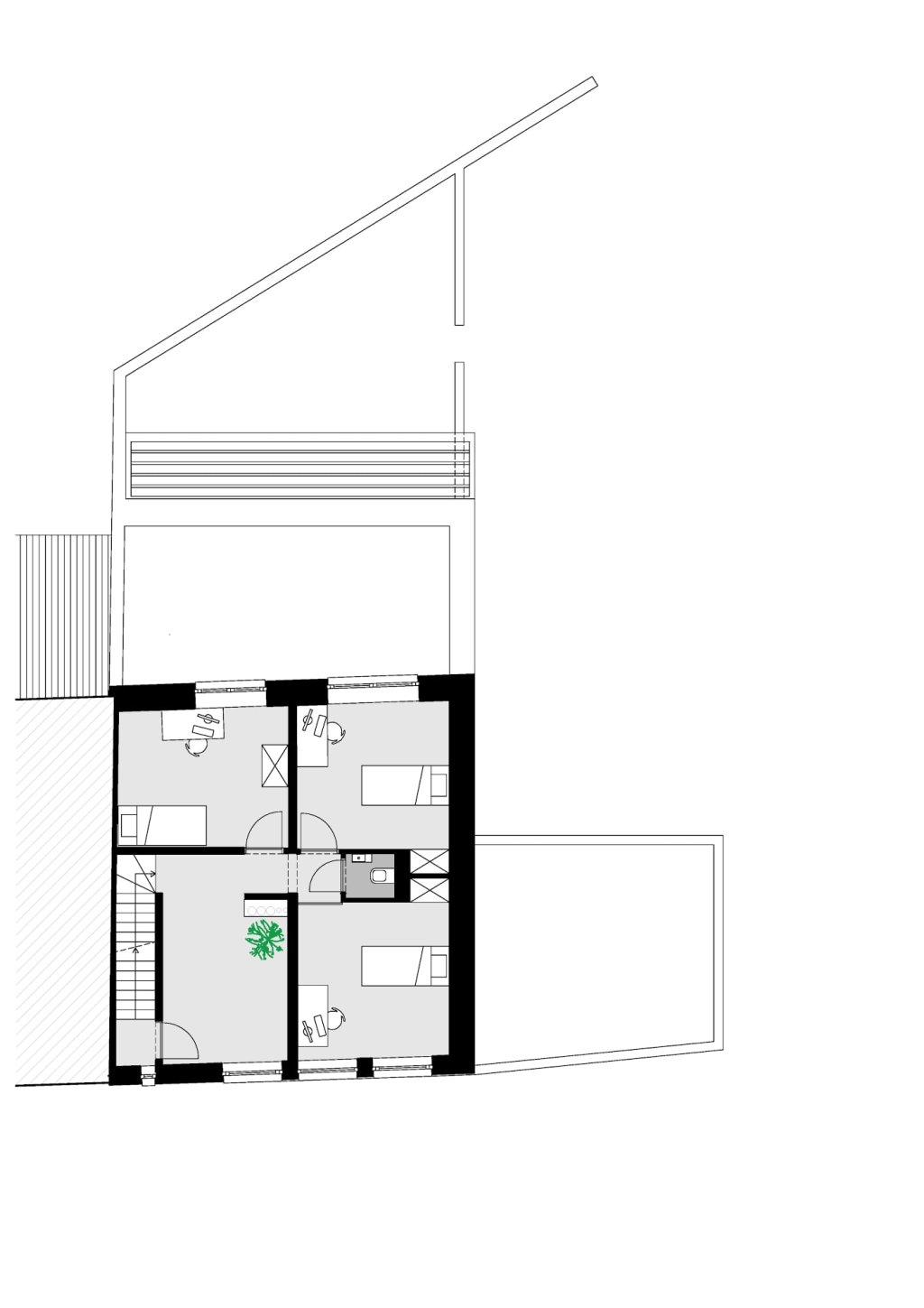
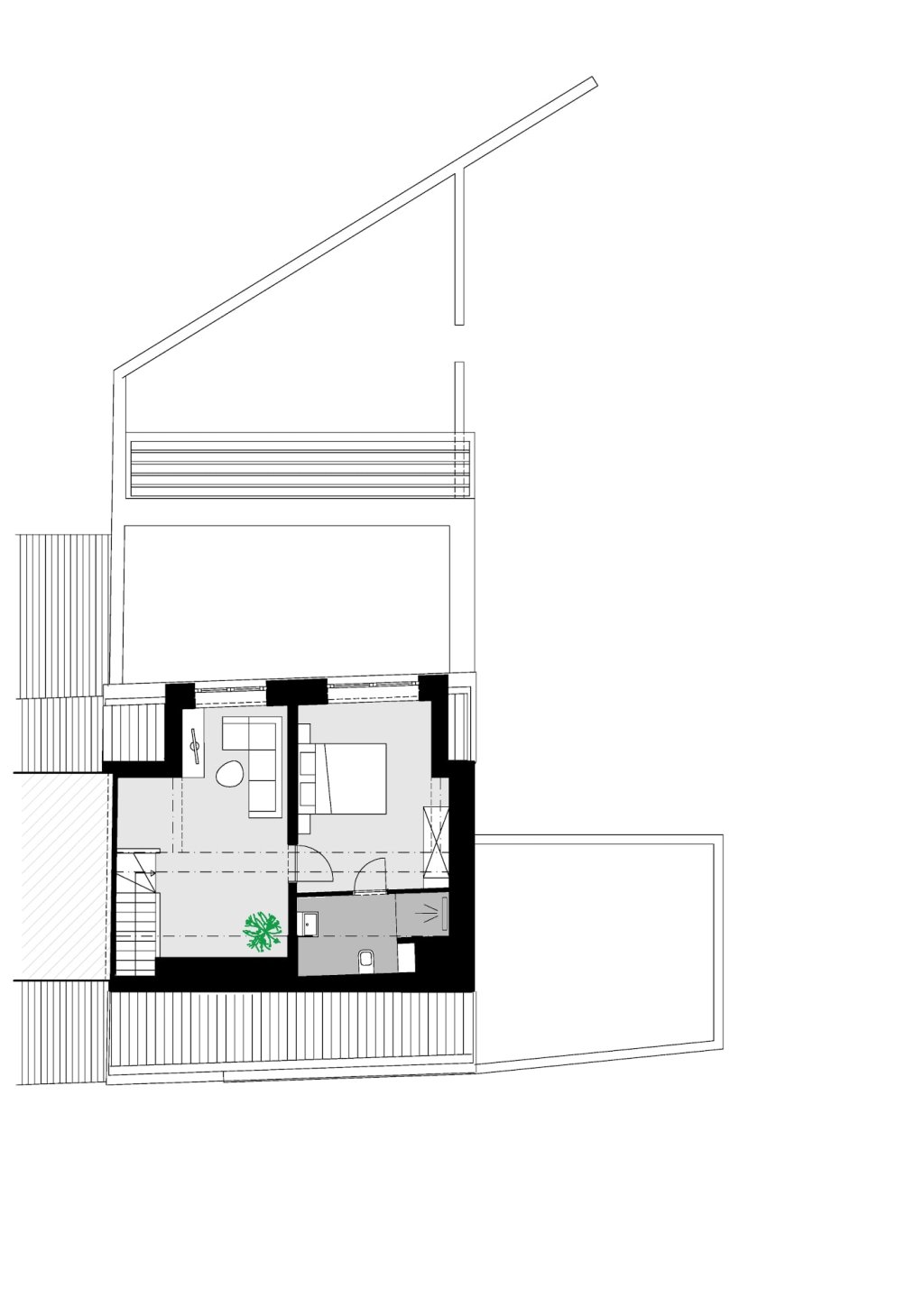
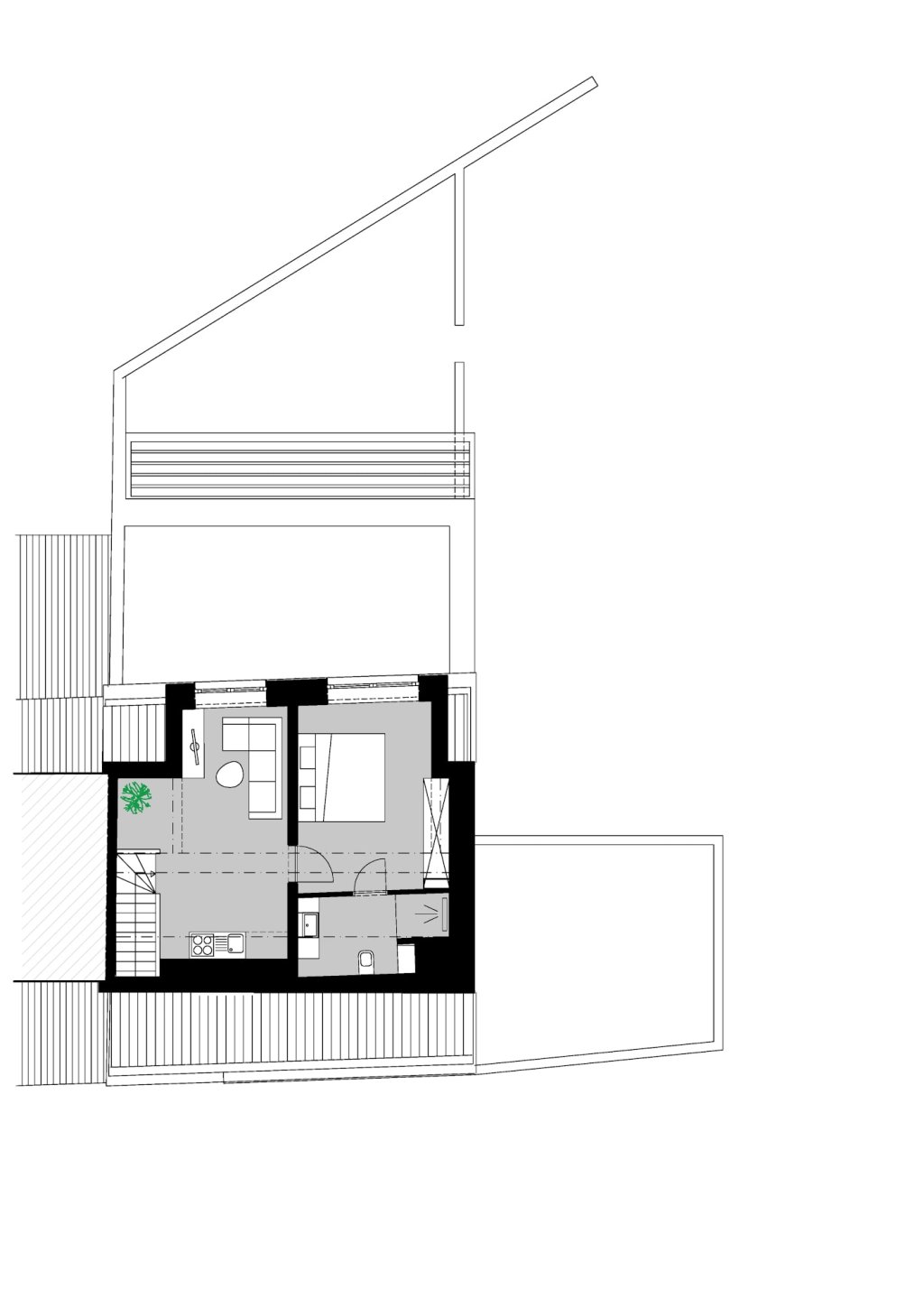
Verbouwen hoeft niet altijd gepaard te gaan met grote volumewijzigingen. Duurzaamheid zit ook in het hergebruik van bestaande materialen. Bij deze energetische renovatie werd enkel de bestaande veranda gesloopt en vervangen door een fietsenberging met carport. Het bestaande hoofdvolume werd volledig onder handen genomen. Een compact beschermd volume werd voorzien van een nieuwe isolatieschil, afgewerkt met steenstrips. Een speelse schakering in natuurlijke baksteentinten zorgt voor een levendig geheel.
De nieuwe indeling van deze ruime eengezinswoning laat ook toe om in de toekomst de woning om te vormen tot een B&B of soortelijk toeristisch logie.
-
Categorie
Woon
-
Fases
Uitvoering
-
Bouwheer
M - VB
-
Ontwerp
2023 - 2024
-
Uitvoering
2024 - ...
-
Locatie
Kortrijk







